Inspections
**You MUST register to view this property, please click on the "Book An Inspection Time" or "Contact Agent" button and register your details. You MUST CONFIRM your registration when requested, or the appointment time will not go ahead**
Details
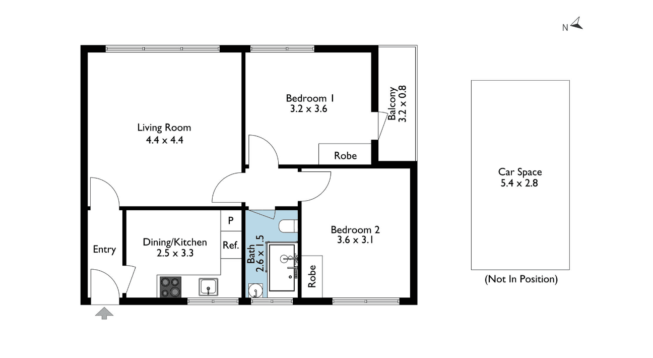
- View Floor Plan
- View Video
- Download Brochure
Bise is pleased to welcome for lease this modern, light-filled apartment offers the perfect balance of comfort and convenience in the heart of Richmond. Located in a tightly held boutique block, it combines modern design with everyday practicality, making it an ideal place to call home.
* Spacious East-Facing Living Room**: Filled with natural light, the living room is a perfect spot to relax or entertain.
* Modern Separate Kitchen**: Equipped with stainless steel appliances, gas cooktop, and great storage space.
* Two Generous Bedrooms**: Both with built-in robes; the main bedroom features direct access to the private balcony.
* Central Bathroom**: Featuring a shower-over-bath and quality fittings, designed for comfort and practicality.
* Secure Entry & Off-Street Parking
*Location Highlights: *
* Directly across from **Victoria Gardens Shopping Centre**, with everything you need right at your doorstep.
* Close to the scenic **Yarra River trails**, perfect for cycling and walking.
* A stone's throw from **Richmond's vibrant dining and café culture** along Victoria and Bridge Roads.
* Easy weekend trips to **IKEA**, **Hoyts Cinema**, or enjoy convenient access to trams and trains, just minutes away for a quick trip to the CBD.
This apartment offers effortless inner-city living in one of Melbourne’s most desirable areas. Make it yours and enjoy a prime Richmond location with everything you need nearby!
YOU MUST register for an inspection by clicking on “Request Inspection” and you will be instantly informed of any updates, changes, or cancellations for your appointment.
Please apply for this property through the 2Apply link sent to you via email/SMS after the inspection and or ignite link.



















